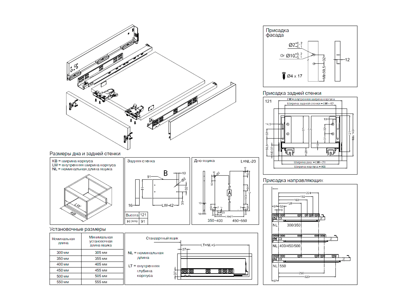
Современная мебель должна быть не только красивой, но и функциональной. Поэтому системы выдвижения постоянно модернизируются и улучшаются для обеспечения максимального комфорта при использовании. В последнее время большую популярность получили ящики с тонкой стенкой, которые не только позволяют максимально эффективно использовать внутреннее пространство ящика, но и отлично вписываются в дизайнерские идеи для мебельных изделий. Отличительной особенностью тонкостенных ящиков от стандартных ящиков с двойной стенкой является наличие целиковой боковины. Если в стандартном ящике для увеличения полезной высоты ящика нужно было устанавливать рейлинг, то в данном случае он не потребуется, ведь боковины ящика представлены в трех основных высотах (89 мм, 121 мм и 185мм). Нельзя не отметить и форму боковин, ведь боковина стандартного ящика с двойной металлической стенкой имеем форму трапеции. Тонкостенный ящики же имеют сечение боковины в виде прямоугольника. Важно понимать, что такая форма боковины увеличивает полезную ширину внутри ящика. Важным моментом как для Клиента, так и для сборщика является наличие регулировок, которые позволяют устранить неточности сборки и в частности устранить зазоры между смежными фасадами. Механизмы регулировки интегрированы в боковины ящика и позволяют произвести регулировку не только по горизонтали и вертикали, но и по наклону фасада.
Вместо стандартных серого и белого цветов, новая линейка получила боковины в цвете антрацит и перламутр.
Данная система базируется на направляющих скрытого монтажа Firmax 3D Control, которые прошли сертификацию и рассчитаны на 60000 циклов открывания/закрывания при нагрузке в 40 кг. В зависимости от предпочтений Клиента ящик можно установить, как с механизмом плавного закрывания (Soft-Close), так и с механизмом открывания ящика при нажатии на фасад (Push-to-Open). Второй вариант будет идеальным решением в случае необходимости установки мебели без ручек.
Для монтажа ящика необходимо приобрести:
Комплекты крепежа в цвет:
FRM0320.96/1 для боковин высотой 89 мм и 121 мм;
Комплекты направляющих необходимой длины:
Направляющие с доводчиком:
FRM0333.S50 - 500 мм
Направляющие с с толкателем Push:
FRM0333.P50 - 500 мм