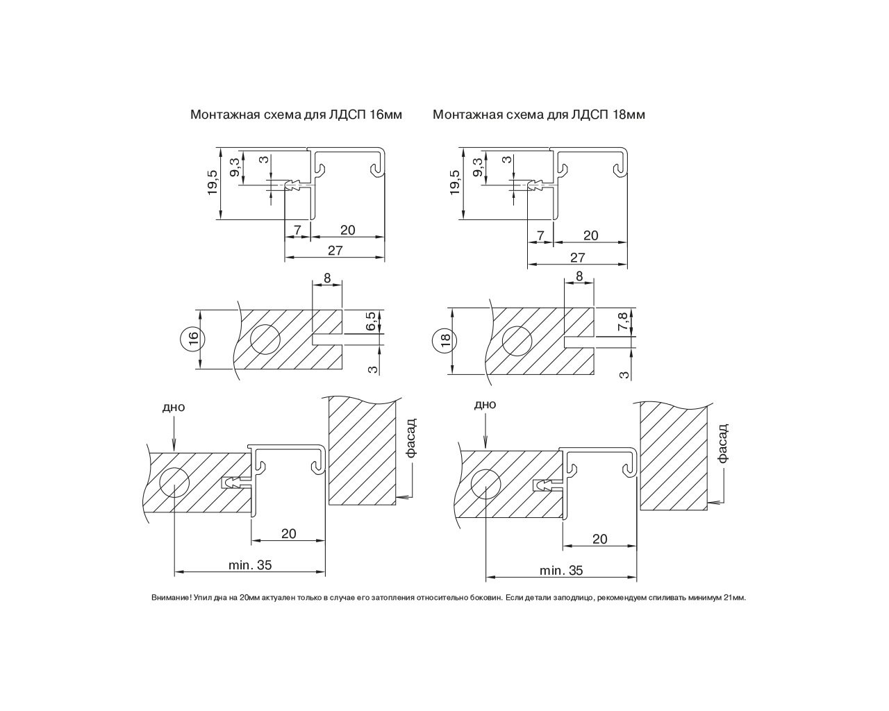
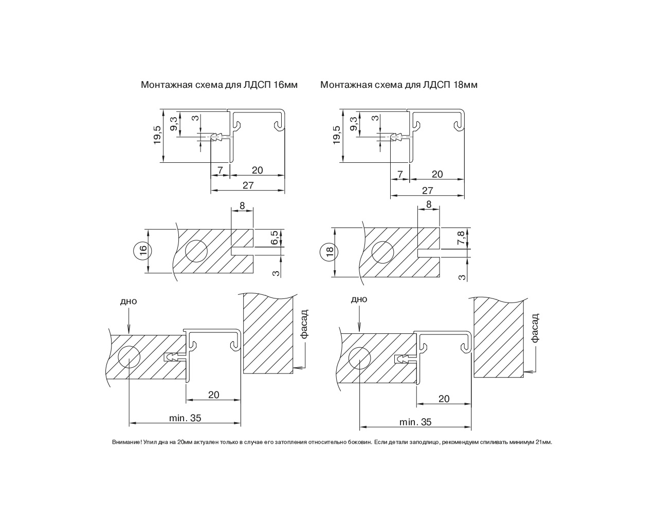
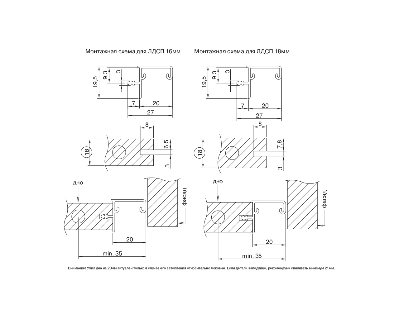
Профиль врезной GOLA FIRMAX для верхних баз с пазом для светодиодной ленты, для ДСП-16/18мм, L=3000мм, алюминий золото браш

2 031,86₽/1 шт.
2 031,86₽/1 шт.
В наличии
Артикул
FRM9221.GB
Торговая марка
FIRMAX
Все параметры
Параметры
Артикул
FRM9221.GB
Торговая марка
FIRMAX
Вес, кг
0.6
Норма отпуска
1
Цвет
Золото
Этот товар в подборках
Почему стоит начать покупать в ТБМ


